Spring Valley, Lake, California, USA
Monday, March 10, 2025
ASSOCIATION
About SVLA
History
Mission Statement
Vision Statement
Benefits Received for Assessments
Board of Directors
Clubs & Recreation Classes
Committees
Connect With Us
Document Center
Financials
Disclosure Packets
Financials: 2024
Yearly Audits
Local Businesses
Lost & found Animals
Management Team
Management Reports
CSA 64 Ops Report
Map & Directions
SVLA Breeze
The Breeze 2024
Lake Lowering
SVLA Newsletters
SVLA Newsletters: 2023
EQ Newsletters
DEPARTMENTS
Architecture
Association Office
Code Enforcement
Operations/Maintenance
Public Safety
AMENITIES
Beach and Parks
Boating
Equestrian Center
Facility Rentals
Fishing Areas
Lake
Lake Photos
Lake Photos
Lake Town Hall
Lake Town Hall
Vessel Registration
View Our Facilities CB
View Our Facilities EQ
PROJECTS
I WANT TO...
Access my account information
Become a Tenant Member
Board a Horse
Get a Free Pet Tag
Go Fishing
Have a Garage Sale
View Garage Sale Listings
Join a Club
Join a Committee
Make a change to my property
Meet the Management Team
Register My Vessel
Rent a Facility
Rent a Slip
Report a Code Enforcement Issue
Report a Maintenance Issue
View Community Calendar
View BOD Agendas & Minutes
BOD Videos
View Financials
View General Manager Videos
General Manager Videos: 2023
Visit the Park/ Beach
View Projects in the Community
View Smoking Areas
View the SVLA Breeze
View Upcoming Events
View Surveys/Results
Event Preference Survey
Navigate the SVLA Living App
CONTACT US
EMPLOYMENT
Back to Operations/Maintenance
Meet the Team
Beach & Parks
Equestrian
Lake
Local Public Utilities
Report a Maintenance Issue
Projects
2024 Projects Around Community
Capital Improvements
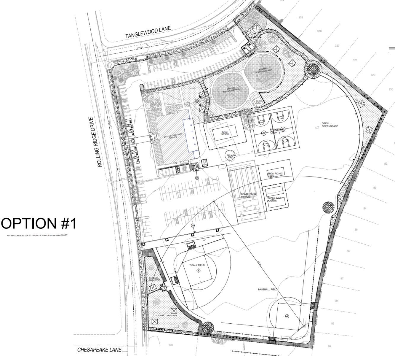
Meadowlark Park Project
Meadowlark Park Project
Pending Architectural Revision
Meadowlark Park Plans
Click on photos to enlarge:
Option #1
Option #2